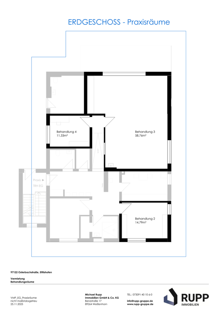
In unserer Praxis stehen drei helle und schön ausgestattete Praxisräume zur Vermietung zur Verfügung. Die Räume können flexibel genutzt werden: dauerhaft als fester Standort, zeitweise (stunden- oder tageweise) oder auch einzeln je nach Bedarf. Sie eignen sich ideal für Therapeutinnen, Beraterinnen, Heilpraktiker*innen oder ähnliche Berufsgruppen, die einen professionellen und ruhigen Arbeitsraum suchen. Bei Interesse oder […]
Drei Praxisräume: flexibel & einzeln mietbar
Drei Praxisräume: flexibel & einzeln mietbar
Dreizeiler
Das bietet dieses Objekt
So groß ist diese Immobilie
Objektbeschreibung
In unserer Praxis stehen drei helle und schön ausgestattete Praxisräume zur Vermietung zur Verfügung. Die Räume können flexibel genutzt werden: dauerhaft als fester Standort, zeitweise (stunden- oder tageweise) oder auch einzeln je nach Bedarf. Sie eignen sich ideal für Therapeutinnen, Beraterinnen, Heilpraktiker*innen oder ähnliche Berufsgruppen, die einen professionellen und ruhigen Arbeitsraum suchen. Bei Interesse oder für weitere Informationen stehen wir gerne zur Verfügung.“
Kontaktdaten

89264 Weißenhorn
Hier befindet sich die Immobilie
Objekt Informationen
Weitere Beschreibung
Die Mietkonditionen werden bei Interesse im persönlichen Gespräch nach einer Besichtigung besprochen.
Ausreichend Stellplätze vorhanden
Nicht das passende dabei?
Nutzen Sie unser Suchprofil! Wenn aktuell kein passendes Immobilienangebot auf unserer Website verfügbar ist, können Sie ganz einfach ein persönliches Suchprofil anlegen. So informieren wir Sie automatisch, sobald ein Objekt Ihren Vorstellungen entspricht – kostenlos und unverbindlich.
